м. Гостомель, вул. Соборна, 1

sobornyigostomel@gmail.com

+38 050 567 67 67

м. Гостомель, вул. Соборна, 1

sobornyigostomel@gmail.com

+38 050 567 67 67

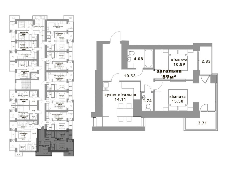
Квартира 59m 2k

Квартира 59m 2k
59.00 м² Загальна площа
26.00 м² Житлова площа
2 Кількість кімнат
2 Поверховість

Комплектація квартир

  • - Вхідні двері - металеві мдф накладкою;
  • - Опалення - індивідуальне газове з підключенням двоконтурного газового котла;
  • - Підлога - стяжка лазерна;
  • - Лічильники - газ, світло, вода;
  • - Стіни - чистова гіпсова штукатурка;
  • - Інтернет, відеоспостереження, територія, що охороняється;
  • - Міжкімнатні перегородки - гипсоблок;
  • - Фундамент - монолітна плита;
  • - Міжквартирні перегородки - цегла червоний;
  • - Стіни - червона цегла;
  • - Вікна - двокамерний склопакет, п'ятикамерний профіль;
  • - Утеплення стін - пінополістирол + облицювальна цегла.
Залишити заявку

Ім'я*

Ваш телефон*

Ваш email

title
text